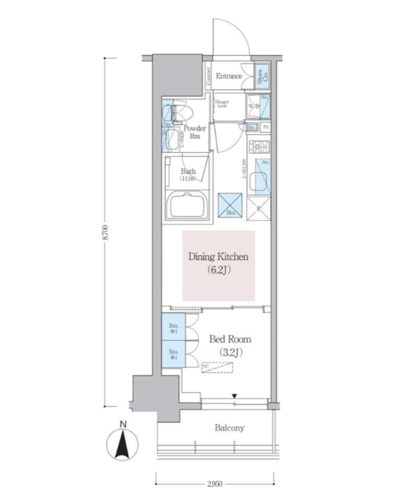
/
【外観】
- 物件名
- アーバネックス秋葉原EASTⅢ
- 価格
- 26.5万円
- 管理/共益費
- 15,000円
- 築年月
- 2020年5月(築5年)
- 総戸数
- -
- 設備条件
-
- エレベーター
- 駐輪場
- バイク置場あり
- 敷地内ごみ置き場
- 外観タイル張り
- インターネット対応
- オートロック
- 宅配ボックス
- 防犯カメラ
- 24時間ゴミ出し可
- 設備(その他)
-
-
-
- 駐車場/月額
- 近隣/50,000円 100m
- 用途地域
- -
- 戸数
- - / -
- 取引態様
- 仲介
アーバネックス秋葉原EASTⅢの基本情報
アーバネックス秋葉原EASTⅢの詳細情報
アーバネックス秋葉原EASTⅢで募集中の物件
近隣の物件
アーバネックス秋葉原EASTⅢ
お気軽にお問い合わせください
MINATO STYLE 麻布十番本店(株式会社3B ARROWS)
03-6721-0508
10:00~素敵なお部屋が見つかるまで
(休:第一・第三火曜、毎週水曜(1月〜3月は無休))
